REF: 4177653

2 STATIGE nieuwbouwwoningen nabij CENTRUM Wingene!

Egemsestraat 25, 8750 Wingene, België

Woning Te koop

Deze ZEER RUIME nog op te richten HALFOPEN GEZINSWONINGEN liggen op slechts 450m van het dorpscentrum, met zijn buurtwinkels en bushaltes.
Iedere woning wordt voorzien van VLOERVERWARMING (glvl + verdieping) gekoppeld met WARMTEPOMP en ZONNEPANELEN!

Op het gelijkvloerse is er de inkomhal met gastentoilet, lichtrijke woonkamer met open ingerichte keuken en aansluitend de praktische berging/wasplaats.
Via de wasplaats is er ook toegang tot de tuin. Alsook op de gelijkvloerse verdieping bevindt zich een eerste kamer of bureelruimte.
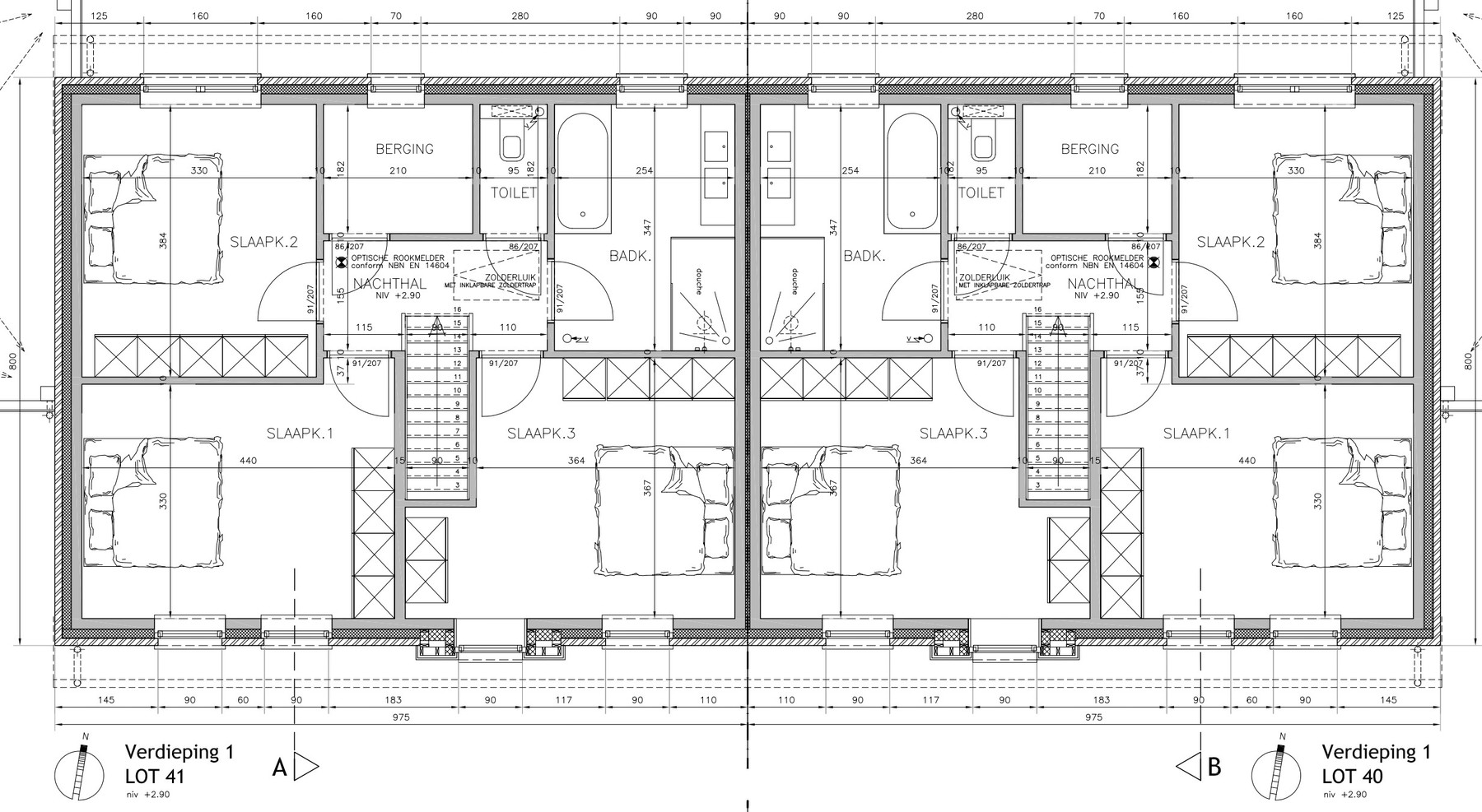
De bovenverdieping is voorzien van de nachthall, 3 slaapkamers, 2e afzonderlijk toilet, ingerichte badkamer en een 2e berging.
Via de zolderruimte kan u de bergzolder bereiken. De tuinen zijn zuidoost gericht en naast de woning wordt er een CARPORT voorzien.

E-peil 30.
Verkoop onder BTW. ***Aankoop aan 6% BTW mogelijk wanneer u voldoet aan de voorwaarden!***

Praktische informatie

Bouwjaar
2025
Beschikbaarheid
na oplevering
Perceeloppervlakte
418 m²
Slaapkamers
3
Keuken
ja
Keuken oppervlakte
7 m²
Badkamers
1
Oriëntatie
Zuidoost
Woonkamer
31 m²
Toiletten
2
Bureau
ja (8m²)
Berging
ja
Zolder
ja
Tuin
ja (Zuidoost)
Tuin oriëntatie
Zuidoost

Technische en wettelijke informatie

Gebouw type
halfopen
Voorkooprecht
nee
Beschermd erfgoed
nee
Geïnventariseerd erfgoed
nee
O-Peil
Niet overstromingsgevoelig
EPC referentie
OMV_2023167309
Verkavelings­vergunning
ja
Bestemming
Woongebied
Dagvaarding
nee
Elektriciteitskeuring beschikbaar
ja
P-score
C
G-score
B

Faciliteiten

Elektriciteit
€ 378.000