REF: 4129170

CHARMANTE gezinswoning nabij havengeul van NIEUWPOORT!

Kleitendijkstraat 17, 8434 Lombardsijde, België

Woning Te koop

Deze KARAKTERVOLLE HALFOPEN gezinswoning is gelegen in een aangename RESIDENTIELE WOONWIJK in Lombardsijde, met de DUINEN en ZEE op wandelafstand! Deze woning heeft een ZEER OPTIMALE INDELING en is ALLES-OMVATTEND o.m. garage, ruime leefruimte en keuken, mooie tuin, ... Bij de bouw van deze woning wordt er absolute aandacht besteed aan de ENERGIEZUINIGHEID dit door o.m. ZONNEPANELEN, vloerverwarming met WARMTEPOMP, ... . Deze villa wordt opgericht op een perceel van liefst 343m²!

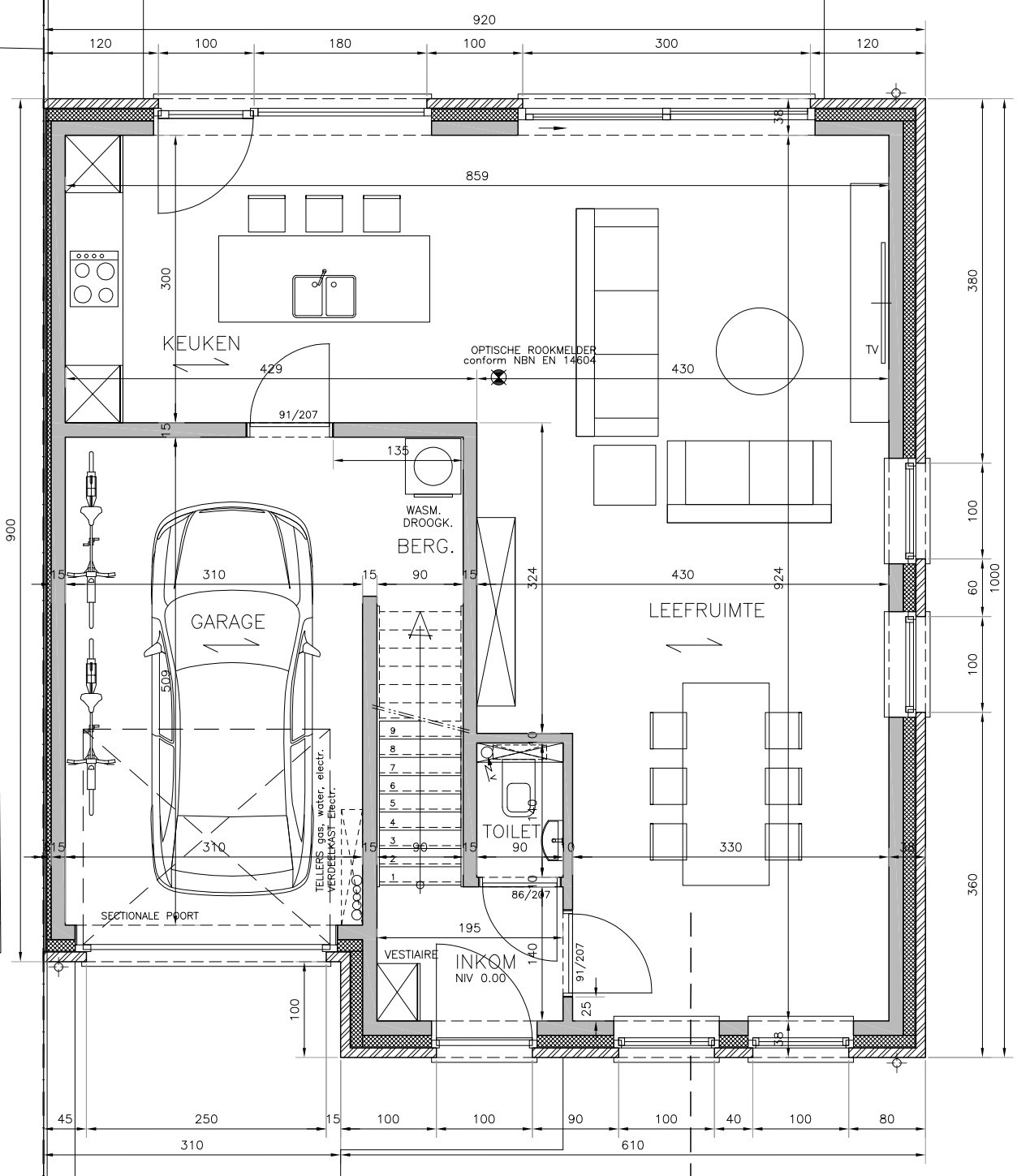
Omvattende op het gelijkvloers een inkomhal met gastentoilet, lichtrijke woonkamer met zit- en eethoek, open ingerichte leefkeuken, de inpandige garage met berging.
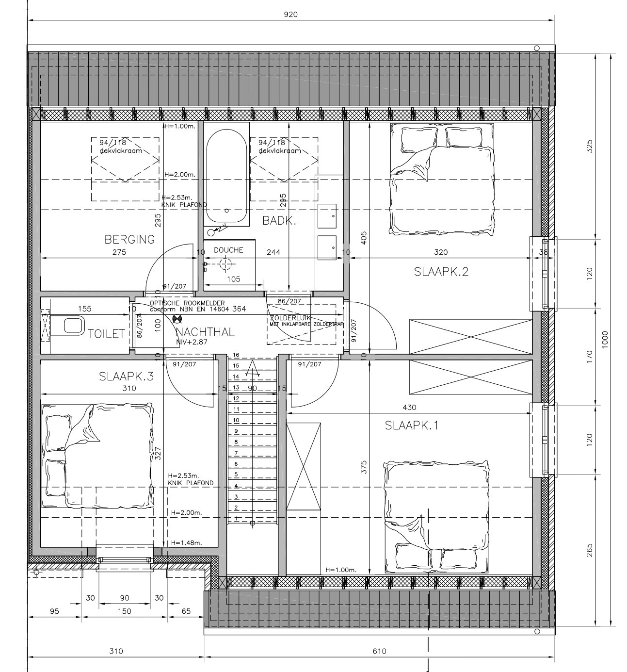
Op de bovenverdieping is er de nachthall, afzonderlijk toilet, berging (ev. buro), 3 slaapkamers en een ingerichte badkamer. Via een zolderluik kan u de bergzolder bereiken.
De woning wordt omringt door een mooie tuin.

E-peil 30.
Verkoop onder BTW-stelsel.

U als koper heeft RUIME INSPRAAK in de afwerking van deze woning, ook kan eventueel de indeling nog lichtjes gewijzigd worden naar uw wensen!

TOPLIGGING!!

Praktische informatie

Bouwjaar
2025
Beschikbaarheid
na oplevering
Perceeloppervlakte
343 m²
Slaapkamers
3
Keuken
ja
Keuken oppervlakte
12 m²
Badkamers
1
Woonkamer
39 m²
Toiletten
2
Garage
ja
Berging
ja
Zolder
ja
Tuin
ja
Dubbele beglazing
ja

Technische en wettelijke informatie

Energiebron
Warmtepomp
Gebouw type
halfopen
Voorkooprecht
nee
Beschermd erfgoed
nee
Geïnventariseerd erfgoed
nee
O-Peil
Niet overstromingsgevoelig
EPC categorie
A
Verkavelings­vergunning
ja
Bestemming
Woongebied
Dagvaarding
nee
Elektriciteitskeuring beschikbaar
ja
P-score
C

Faciliteiten

Riolering
Elektriciteit
€ 374.000