REF: 4205006

PRAKTISCHE gezinswoning tussen Veltembos & Gemene Weidebeek!

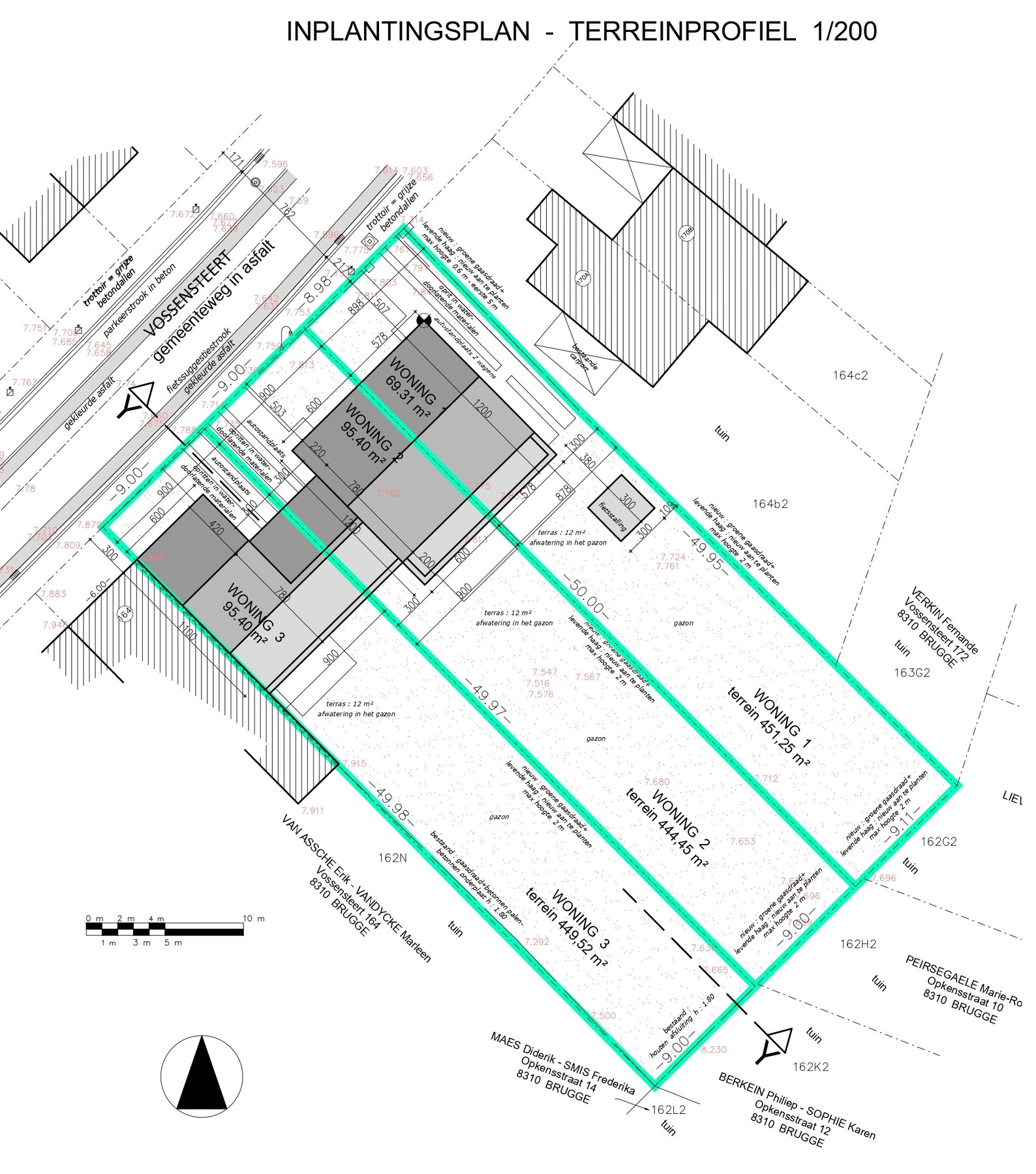
Vossensteert 166, 8310 Sint-Kruis, België

Woning Te koop

Deze PRAKTISCHE gezinswoning met RUIME GARAGE én DIEPE PERFECT ZUIDGERICHTE TUIN, bevindt zich op een CENTRALE LIGGING nabij Veltembos & Gemene Weidebeek. Deze woning werd NIEUW OPGERICHT met AANDACHT voor MOOIE LICHTRIJKE WOONRUIMTES!

U heeft inkomhal met gastentoilet, zeer lichtrijke woonkamer met zit- en eetplaats, open ingerichte keuken met aansluitend berging, sas dat toegang geeft naar een zeer ruime garage. Vanuit de garage is er een rechtstreekse toegang tot de achterliggende tuin! De bovenverdieping wordt voorzien van de nachthall, ingerichte badkamer met ligbad en inloopdouche, afzonderlijk toilet, 4 slaapkamers en een 1ste zolder. Via een zolderluik kan u de 2de ruime zolder bereiken.

Verkoop onder BTW-stelsel.
E-peil 30.

ZEKER UW BEZOEK WAARD!!

Praktische informatie

Bouwjaar
2025
Beschikbaarheid
na oplevering
Perceeloppervlakte
449 m²
Slaapkamers
4
Keuken
ja
Keuken oppervlakte
7 m²
Badkamers
1
Oriëntatie
Zuid
Woonkamer
36 m²
Toiletten
2
Garage
ja
Berging
ja
Zolder
ja
Tuin
ja (Zuid)
Tuin oriëntatie
Zuid
Dubbele beglazing
ja

Technische en wettelijke informatie

Gebouw type
halfopen
Voorkooprecht
nee
Beschermd erfgoed
nee
Geïnventariseerd erfgoed
nee
O-Peil
Niet overstromingsgevoelig
EPC categorie
A
EPC referentie
OMV_2022166188
Bouwvergunning
Ja
Verkavelings­vergunning
nee
Bestemming
Woongebied
Dagvaarding
nee
Elektriciteitskeuring beschikbaar
ja
P-score
A
G-score
A

Faciliteiten

Riolering
Elektriciteit
Gas
€ 459.500